



Автоматические модули - пробоотборники
Интегрированный отбор образцов и взвешивание сыпучих материалов
Когда Вам необходимы любые из этих характеристик:
Самая небольшая высота в отрасли
Полная интеграция в процесс взвешивания
Конструкция из нержавеющей стали
Установка в вертикальное или наклонное положение
Возможность работы от электричества, воздуха или гидравлики
Подтверждение USDA, Canadian, FGIS и NOPA
Вы должны выбрать Gustafson Sampler.
Можем ли мы его назвать лучшим?
Небольшая высота :
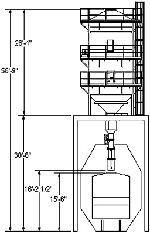
Мы можем уменьшить общую высоту пробоотборника, т.к. мы устанавливаем бункерные весы над пробоотборником, а горлышко под ним, а также устраняем необходимость установки переходных элементов трубопровода. Например, наш 700 т/ч пробоотборник высотой всего 990мм;, а 2,000 т/ч - всего лишь 1,3м;. Сравните эти данные с продукцией конкурентов, которые достигают более 2,1м; в высоту. Эта экономия в высоте может быть использована для увеличения объёма верхнего бункера или уменьшения общей высоты системы.
Полная интеграция: т.к. наша весовая система знает, какой вагон загружается, мы можем распечатать бланк с накладной, и контроллер может внести информацию в систему.
Нержавеющая сталь:
В то время как конкуренты используют крашенную малоуглеродистую сталь, наши системы изготавливаются полностью из нержавеющей стали, что гарантирует долгосрочную эксплуатацию.
Опции установки:
Пробоотборники могут размещены в вертикальном положении, а при не-FGIS применениях в наклонном положении, ниже или выше весов.
Гибкость силового привода:
Весы могут питаться от пневматических или гидравлических весовых систем, а также от источника 220В переменного тока.
Полностью утвержденная система:
Пробоотборники полностью утверждены всеми законодательными органами, в том числе USDA, Canadian, FGIS и NOPA (National Oilseed Processors Association).
Пример весов на 1,700 т/ч, пробоотборника и горлышка, расположенного над рельсами (см. вторую картинку сверху).
Описание:
Модель G Автоматического пробоотборника многосторонний поперечный пробоотборник, разработанный для свободно перемещающихся продуктов. Продуктами могут являться гранулы, порошки, хлопья, шарики и глинистые суспензии.
Действие:
Он имеет настраиваемую скорость подачи. Распределение давления по перечному сечению «типа пеликан» при движении сквозь арку для сбора образца. Образец двигается через гибкую трубку во вторую систему отбору проб.
Характеристики модели G пробоотборника:
Корпус Пробоотборника производится из нержавеющей стали с квадратными, фланцованными входными отверстиями и выходными отверстиями, которые будут подходить для желоба, установленного у клиента
Герметичная дверь обследования и приболченные панели для облегчения эксплуатации.
Поворотный резчик-пеликан пробоотборника с возможностью наклона на 500, сменный диаметр на 50мм или 75мм, 20мм открытие резчика, упрочнённые, с возможностью замены лезвия, верхние и нижние опоры.
Заменимые перемычки из пенорезины с неопреновой подкладкой
Промышленный гидравлический цилиндр с 4-х этапным фильтром электромагнитного распределителя, регулятором давления и шкалой.
Стандартный автоматический контроллер оснащён пыле- и водонепроницаемым неметаллическим корпусом NEMA 4X с цифровым таймером (220V / 1 Ph / 50 Hz or 120V / 1 Ph / 60 Hz). Контроллер предназначен как для запуска модели G, так и модели SC.
Характеристики вторичного пробоотборника:
Корпус пробоотборника производится из нержавеющей стали с 50мм или 75мм входными отверстиями и коммуникационными выходами.
Отводящая перегородка из нержавеющей стали с горизонтальной осью и припаянными опорами.
Одинарный фиксированный резчик образцов с регулируемой шириной отверстия и 50мм или 75мм диаметром разгрузочного отверстия.
Герметизированные порты доступа.












